HK-147

外観図
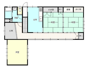
図面
賃 料/
10,000,000種別/一戸建て お問合せコード[4_1154 ]
交 通/
JR八戸線/本八戸 徒歩-分 / バス-分・バス歩-分
所在地/
青森県八戸市吹上六丁目

メモ欄: