HK-161

外観図
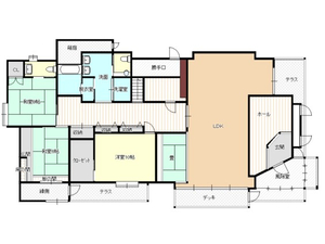
図面
賃 料/
25,000,000種別/一戸建て お問合せコード[4_1197 ]
交 通/
東北新幹線/七戸十和田 徒歩-分 / バス-分・バス歩-分
所在地/
青森県上北郡七戸町天王

メモ欄: