HOC-118

外観図
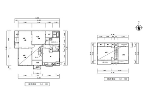
図面
賃 料/
5,800,000種別/一戸建て お問合せコード[4_1282 ]
交 通/
青い森/三沢 徒歩-分 / バス-分・バス歩-分
所在地/
青森県三沢市三沢字古間木山 114-6

メモ欄: