HK-147
-
住所
-
青森県八戸市吹上六丁目
-
アクセス
- 八戸線 本八戸
-
価格
- 1000万 円
-
間取り
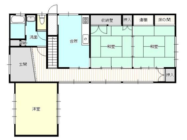
- 6DK
-
土地面積
- 235.98m 2 ( 71.38坪 )
-
建物面積
- 169.51m 2 ( 51.27坪 )
-
築年月
- 1978年10月 ( 築47年 )
間取り図
詳細・設備・条件・取引について
基本
| 問い合わせ番号 | hachinohe_4_257 | ||
|---|---|---|---|
| アクセス | 八戸線 本八戸 | 種別 | 一戸建て |
| 所在地 |
青森県八戸市吹上六丁目
|
学校区 | 吹上小 第一中 |
| 問い合わせ番号 | hachinohe_4_257 |
|---|---|
| アクセス | 八戸線 本八戸 |
| 種別 | 一戸建て |
| 所在地 |
青森県八戸市吹上六丁目
|
| 学校区 | 吹上小 第一中 |
費用
| 価格 | 1000万円 | 公庫・融資 | - |
|---|---|---|---|
| 借地期間 | -年 | 地代 | -円 |
| 駐車場 | 敷地内 | バイク置場 | - |
| 駐輪場 | - |
| 価格 | 1000万円 |
|---|---|
| 公庫・融資 | - |
| 借地期間 | -年 |
| 地代 | -円 |
| 駐車場 | 敷地内 |
| バイク置場 | - |
| 駐輪場 | - |
土地
| 土地権利 | 所有権 | 土地持分 | - |
|---|---|---|---|
| 土地面積 (公簿) | 235.98m 2 ( 71.38坪 ) | 土地面積 (実測) | - |
| 私道負担面積 | - | 私道負担割合 | - |
| セットバック | - | 接道 |
西 私道4m
|
| 建蔽率 | 50% | 容積率 | 80% |
| 地目 | 宅地 | 地勢 | - |
| 都市計画 | 市街化区域 | 用途地域 | 第一種低層住居 |
| 防火 | - | 高度地区 | - |
| 国土法届出 | - | その他法令上の制限 | - |
| 土地権利 | 所有権 |
|---|---|
| 土地持分 | - |
| 土地面積 (公簿) | 235.98m 2 ( 71.38坪 ) |
| 土地面積 (実測) | - |
| 私道負担面積 | - |
| 私道負担割合 | - |
| セットバック | - |
| 接道 |
西 私道4m
|
| 建蔽率 | 50% |
| 容積率 | 80% |
| 地目 | 宅地 |
| 地勢 | - |
| 都市計画 | 市街化区域 |
| 用途地域 | 第一種低層住居 |
| 防火 | - |
| 高度地区 | - |
| 国土法届出 | - |
| その他法令上の制限 | - |
建物
| 構造 | 木造 | 完成年月 | 1978年10月 ( 築47年 ) |
|---|---|---|---|
| 建築面積 | - | 敷地面積 | - |
| 建物面積 | 169.51m 2 ( 51.27坪 ) | 階建 | 2階建 |
| 間取り | 6DK | バルコニー面積 | - |
| リフォーム | - | リノベーション | - |
| 施工会社名 | - | 建築確認番号 | - |
| こだわり条件 |
|
||
| 設備・条件 | 現況引渡し・私道持分なし。 附属建物(車庫)あり。 内見ご希望の際には、事前にご連絡をお願い申し上げます。 |
||
| 構造 | 木造 | ||
|---|---|---|---|
| 完成年月 | 1978年10月 ( 築47年 ) | ||
| 建築面積 | - | ||
| 敷地面積 | - | ||
| 建物面積 | 169.51m 2 ( 51.27坪 ) | ||
| 階建 | 2階建 | ||
| 間取り | 6DK | ||
| バルコニー面積 | - | ||
| リフォーム | - | ||
| リノベーション | - | ||
| 施工会社名 | - | ||
| 建築確認番号 | - | ||
| こだわり条件 | |||
| 設備・条件 | 現況引渡し・私道持分なし。 附属建物(車庫)あり。 内見ご希望の際には、事前にご連絡をお願い申し上げます。 |
||
その他
| 現況 ・ 入居 | 空家 ・ 相談 | 取引態様 | 仲介 |
|---|---|---|---|
| 次回更新日 | 2025/12/20 | 担当者 | 小野憲司 |
| 現況 ・ 入居 | 空家 ・ 相談 |
|---|---|
| 取引態様 | 仲介 |
| 次回更新日 | 2025/12/20 |
| 担当者 | 小野憲司 |
こちらの物件もあります。
1790万 円
青森県上北郡おいらせ町中下田
青い森 下田
1800万 円
青森県八戸市長根
八戸線 本八戸
800万 円
青森県上北郡おいらせ町緑ケ丘
青い森 三沢
2299万 円
青森県八戸市南白山台
JR八戸線 八戸
1499万 円
青森県三戸郡階上町蒼前東
八戸線 金浜
250万 円
青森県十和田市法量
東北新幹線 七戸十和田
1449万 円
青森県八戸市妙
JR八戸線 陸奥湊
2290万 円
青森県上北郡おいらせ町鶉久保
青い森鉄道 三沢
1499万 円
青森県三戸郡階上町蒼前東
JR八戸線 金浜
2300万 円
青森県八戸市西白山台
八戸線 八戸
1190万 円
青森県八戸市鮫町
1200万 円
青森県三沢市古間木
青い森 三沢
2780万 円
青森県八戸市根城
JR八戸線 本八戸
1億 円
青森県八戸市田面木
JR八戸線 八戸
1150万 円
青森県上北郡東北町膳前

HK-147の詳しい情報やお問い合わせはこちら!
お問い合わせ先:㈱サンロク 賃貸部 リアルエステート
免許番号:国土交通省(3)第8138号
営業時間:
TEL:0176-51-1420