HK-166
-
アクセス
- 青い森 下田
-
価格
- 1790万 円
-
間取り
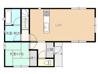
- 4LDK
-
土地面積
- 198.13m 2 ( 59.93坪 )
-
建物面積
- 100.44m 2 ( 30.38坪 )
-
築年月
- 2019年05月 ( 築6年 )
間取り図
詳細・設備・条件・取引について
基本
| 問い合わせ番号 | s-h-1214_4_1206 | ||
|---|---|---|---|
| アクセス | 青い森 下田 | 種別 | 一戸建て |
| 所在地 |
青森県上北郡おいらせ町中下田
|
学校区 | 木内々小 下田中 |
| 問い合わせ番号 | s-h-1214_4_1206 |
|---|---|
| アクセス | 青い森 下田 |
| 種別 | 一戸建て |
| 所在地 |
青森県上北郡おいらせ町中下田
|
| 学校区 | 木内々小 下田中 |
費用
| 価格 | 1790万円 | 公庫・融資 | - |
|---|---|---|---|
| 借地期間 | -年 | 地代 | -円 |
| 駐車場 | 敷地内 | バイク置場 | - |
| 駐輪場 | - |
| 価格 | 1790万円 |
|---|---|
| 公庫・融資 | - |
| 借地期間 | -年 |
| 地代 | -円 |
| 駐車場 | 敷地内 |
| バイク置場 | - |
| 駐輪場 | - |
土地
| 土地権利 | 所有権 | 土地持分 | - |
|---|---|---|---|
| 土地面積 (公簿) | 198.13m 2 ( 59.93坪 ) | 土地面積 (実測) | - |
| 私道負担面積 | - | 私道負担割合 | - |
| セットバック | - | 接道 |
北東 公道6m
|
| 建蔽率 | 60% | 容積率 | 200% |
| 地目 | 宅地 | 地勢 | - |
| 都市計画 | 非線引区域 | 用途地域 | 第一種住居 |
| 防火 | - | 高度地区 | - |
| 国土法届出 | - | その他法令上の制限 | - |
| 土地権利 | 所有権 |
|---|---|
| 土地持分 | - |
| 土地面積 (公簿) | 198.13m 2 ( 59.93坪 ) |
| 土地面積 (実測) | - |
| 私道負担面積 | - |
| 私道負担割合 | - |
| セットバック | - |
| 接道 |
北東 公道6m
|
| 建蔽率 | 60% |
| 容積率 | 200% |
| 地目 | 宅地 |
| 地勢 | - |
| 都市計画 | 非線引区域 |
| 用途地域 | 第一種住居 |
| 防火 | - |
| 高度地区 | - |
| 国土法届出 | - |
| その他法令上の制限 | - |
建物
| 構造 | 木造 | 完成年月 | 2019年05月 ( 築6年 ) |
|---|---|---|---|
| 建築面積 | - | 敷地面積 | - |
| 建物面積 | 100.44m 2 ( 30.38坪 ) | 階建 | 2階建 |
| 間取り | 4LDK | バルコニー面積 | - |
| リフォーム | - | リノベーション | - |
| 施工会社名 | - | 建築確認番号 | - |
| こだわり条件 |
|
||
| 設備・条件 | 現況引渡し・契約不適合免責・境界非明示。 居住中につき内見ご希望の際には、事前にご連絡をお願い申し上げます。 株式会社サンロク八戸店 TEL0178-38-3643 担当 小野 |
||
| 構造 | 木造 | ||
|---|---|---|---|
| 完成年月 | 2019年05月 ( 築6年 ) | ||
| 建築面積 | - | ||
| 敷地面積 | - | ||
| 建物面積 | 100.44m 2 ( 30.38坪 ) | ||
| 階建 | 2階建 | ||
| 間取り | 4LDK | ||
| バルコニー面積 | - | ||
| リフォーム | - | ||
| リノベーション | - | ||
| 施工会社名 | - | ||
| 建築確認番号 | - | ||
| こだわり条件 | |||
| 設備・条件 | 現況引渡し・契約不適合免責・境界非明示。 居住中につき内見ご希望の際には、事前にご連絡をお願い申し上げます。 株式会社サンロク八戸店 TEL0178-38-3643 担当 小野 |
||
その他
| 現況 ・ 入居 | 居住中 ・ 相談 | 取引態様 | 仲介 |
|---|---|---|---|
| 次回更新日 | 2025/12/01 | 担当者 | 小野憲司 |
| 現況 ・ 入居 | 居住中 ・ 相談 |
|---|---|
| 取引態様 | 仲介 |
| 次回更新日 | 2025/12/01 |
| 担当者 | 小野憲司 |
こちらの物件もあります。
1200万 円
青森県上北郡おいらせ町青葉
青い森 三沢
1990万 円
青森県三沢市古間木
青い森 三沢
680万 円
青森県上北郡東北町内蛯沢道ノ上
2650万 円
青森県八戸市吹上
JR八戸線 本八戸
4000万 円
青森県三沢市平畑
青い森 三沢
3056万 円
青森県八戸市沼館
JR八戸線 本八戸
400万 円
青森県八戸市新井田
JR八戸線 陸奥湊
2590万 円
青森県上北郡六戸町小松ケ丘
青い森 三沢
1000万 円
青森県上北郡東北町字上笹橋
2820万 円
青森県上北郡野辺地町鳴沢
3056万 円
青森県八戸市沼館
八戸線 本八戸
300万 円
青森県八戸市吹上
JR八戸線 本八戸
1790万 円
青森県上北郡おいらせ町中下田
青い森鉄道 下田
420万 円
青森県八戸市市川町
青い森 陸奥市川
2600万 円
青森県八戸市田面木
JR八戸線 八戸

HK-166の詳しい情報やお問い合わせはこちら!
お問い合わせ先:㈱サンロク 賃貸部 リアルエステート
免許番号:国土交通省(3)第8138号
営業時間:
TEL:0176-51-1420